Objektart
Adresse
Objektdaten
Informationen
Ausstattung
Details
Dieses im Alleinauftrag angebotene Zweifamilienhaus wurde 1936 auf einem 703 m² großen, sonnigen, ebenen Grundstück erbaut. Es befindet sich im beliebten Stadtteil Sonnenberg.
Das Haus ist nicht mehr bewohnt, ist jedoch sanierungsbedürftig. Das ebene, sonnige Grundstück ist frei von Bau- und Altlasten.
Bei einer Neubebauung kann gemäß Bebauungsplan ein Einzelhaus oder ein Doppelhaus realisiert werden.
Weiterer Auszug aus dem Bebauungsplan vom 23.07.2020:
* allgemeines Wohngebiet
* Grundflächenzahl (GRZ). 0,25
* 2 Vollgeschosse + Dachgeschoss
* Einzelhaus oder Doppelhaus
* Walmdach, Satteldach oder Mansardendach
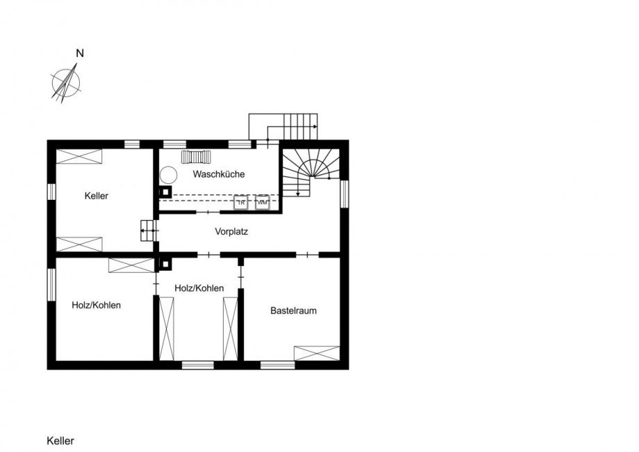
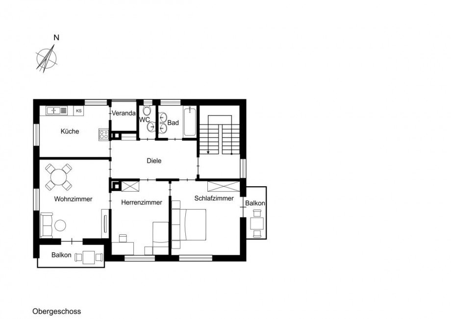
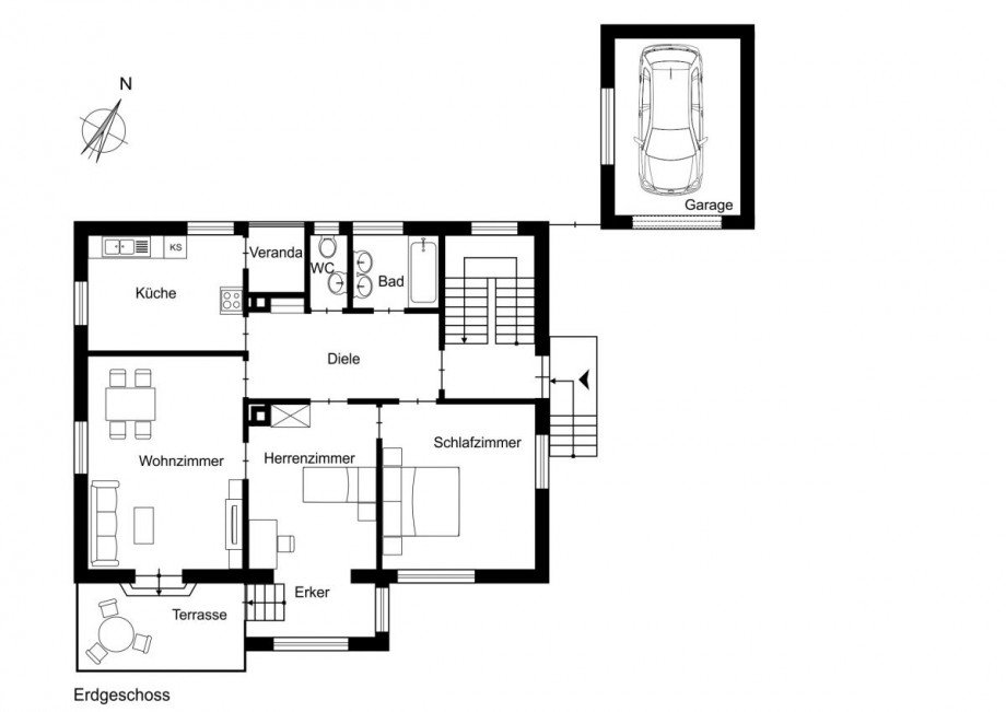
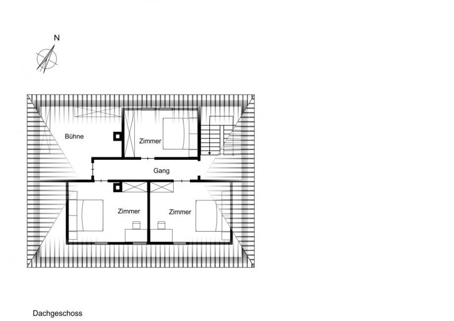
- 2 x 3-Zimmer-Wohnung
- teilweise ausgebautes Dachgeschoss
- 1 Einzelgarage mit davor befindlichem Stellplatz
- Gas-Etagenheizung
Das Haus/Grundstück befindet sich in Sonnenberg, einer der beliebtesten Stuttgarter Wohnlagen.
Die Nachbarbebauung besteht im Wesentlichen aus Ein- und Mehrfamilienhäusern aus den 30er Jahren.
Kindergarten, Schulen (Degerloch, Möhringen), Stadtbahn (unmittelbar vor der Haustüre) und Einkaufsmöglichkeiten befinden sich in direkter Umgebung.
Die B27, die Autobahn A8, Messe und Flughafen sind nur wenige Fahrminuten entfernt.
Grundlage des Angebotspreises ist ein reduzierter Bodenwert (aktuell € 1.880.-/m²) unter Berücksichtigung von Abrisskosten.
Ein Energieausweis wurde aufgrund eines möglichen bevorstehenden Abrisses nicht beantragt.
Bitte teilen Sie uns bei Interesse Ihre vollständige Anschrift und eine Telefonnummer mit, unter der Sie gut erreichbar sind. Sie erhalten dann kurzfristig eine telefonische Rückmeldung. Telefonisch erreichen Sie mich am Besten unter meiner Mobilnummer.
