Objektart
Adresse
Objektdaten
Informationen
Ausstattung
Details
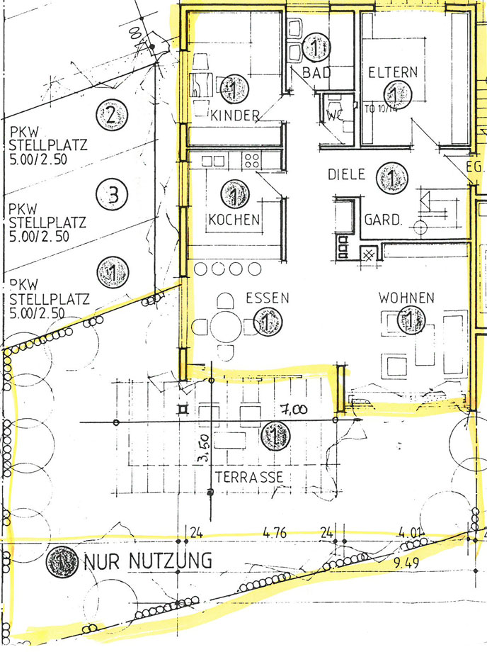
In einer kleinen Wohneinheit (5 Parteien) erwartet Sie eine interessante, großzügige Wohnung im Erdgeschoss mit einem eigenen kleinen Garten. Die Wohnung ist idealerweise für ein Paar oder für eine dreiköpfige Familie geeignet. Die angegebene Wohnfläche bezieht sich ausschließlich auf das Erdgeschoss. Das Erdgeschoss ist durch eine interne Treppe mit dem Untergeschoss verbunden. Die gut nutzbaren und mit Lichtschacht versehenen Räume im Untergeschoss bieten weiteres Potenzial und werden nicht der Wohnfläche (101 m²), sondern der zusätzlichen Nutzfläche (41 m²) zugeordnet.
Neben dem Abstellraum befindet sich dort noch ein Duschbad, ein aktuell als Gästebereich genutztes Zimmer sowie ein großer ausgebauter Hobbyraum. Dieser kann gut als Arbeits-, Gäste- oder auch als weiteres Schlafzimmer genutzt werden.
Das Erdgeschoss ist 2018 neu renoviert worden. In den beiden Schlafräumen ist jeweils ein neuer Laminatboden verlegt worden. Das Badezimmer ist mit einer begehbaren Dusche und mit einer Fußbodenheizung ausgestattet.
Neben dem eigenen kleinen Gartenanteil steht auch ein großer Gemeinschaftsgarten zur Verfügung.
Für die Kehrwoche und den Winterdienst sorgt ein zuverlässiger Hausmeisterservice.
2 Parkmöglichkeiten (Tiefgaragen- und Außenstellplatz) runden dieses interessante Angebot ab.
ERDGESCHOSS:
* großzügiger, heller Wohn- und Essbereich (ca. 40 m²) mit offenem Kamin und großen Fensterelementen
* Glasschiebetüre zur Terrasse und Garten
* Fliesenboden im Wohn- und Essbereich
* 2 Schlafräume (ca. 13 m² und 15 m²) mit Laminatböden
* modernes, neuwertiges Tageslichtbad mit begehbarer Dusche und Fußbodenheizung
* separates WC
UNTERGESCHOSS:
* durch interne Treppe mit EG verbunden
* ausgebauter Hobbyraum mit Tageslicht, auch gut als Gäste, Arbeits- oder weiteres Schlafzimmer nutzbar
* kleines Duschbad mit WC
* Kellerraum
* Abstellraum
- abschließbarer Tiefgaragenstellplatz und ein zusätzlicher Außenstellplatz
- gemeinsame Waschküche
- gemeinsamer Fahrradraum
Ruhiges und dennoch zentrales Wohngebiet in S-Heumaden.
Sehr gute Infrastruktur mit U-Bahnhaltestelle. Einkaufsmöglichkeiten für den täglichen Bedarf, Ärzte, Apotheken, Kindergarten und Schule sind fußläufig erreichbar.
Ideale Verkehrsanbindung in die Innenstadt, zum Stuttgarter Flughafen und zur Autobahn A8.
Im Mietpreis enthalten ist eine Einbauküche, ein Tiefgaragen- und ein Außenstellplatz.
Energieausweis (Verbrauchsausweis)
139 kWh / (m²*a) Energieverbrauchskennwert
139 kWh / (m²*a) Energieverbrauchskennwert
139 kWh / (m²*a) Energieverbrauchskennwert
Weitere Informationen
| Befeuerung | Gas |
| Energieverbrauch für Warmwasser | enthalten |
| Energieausweis Baujahr | 1980 |
| Heizung | Zentralheizung |
