Im Herzen von Esslingen - Wohn- und Geschäftshaus in der Fußgängerzone
Objektart
Adresse
Objektdaten
Informationen
Ausstattung
Details
Dieses charmante Fachwerkhaus aus dem Mittelalter, dessen Ursprungsbaujahr nicht genau zu ermitteln ist, befindet sich mitten in der Esslinger Innenstadt. Es wird als Wohn- und Geschäftshaus genutzt. Das Objekt ist komplett vermietet und wie folgt aufgeteilt (nicht nach WEG):
* Erdgeschoss: (Gewerbefläche ca. 69 m²)
Ladenumbau mit Sanierung 2023 (Böden, Elektrik, Decken)
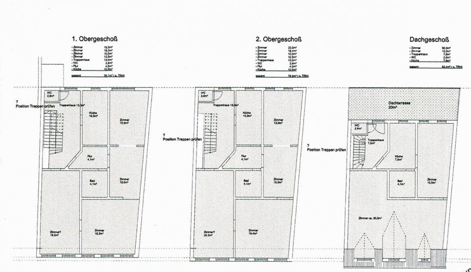
* 1. Obergeschoss: (Wohnfläche ca. 76 m², 4 Zimmer, Küche, Bad und Flur)
* 2. Obergeschoss: (Wohnfläche ca.76m², 4 Zimmer, Küche, Bad und Flur)
* Dachgeschoss: (Wohnfläche ca. 63m², 2 Zimmer, Bad, Küche und große Dachterrasse)
* Untergeschoss: Kellerräume und 2 Gewölbekeller
Elektro: Ein- und Mehrfachschaltungen unter Putz
Heizung: Gasetagenheizungen im EG, 2.OG und DG, sonst Gaseinzelöfen bzw. Elektronachtspeicheröfen
Bodenbeläge: Teppich, PVC und Fliesen
Fenster: Einfach- und Doppelverglaste Fenster
Dach: wurde 1993 erneuert
Sonstiges: neue Schaufensteranlage mit Eingangstüre
Das Objekt befindet sich in der Fußgängerzone von Esslingen am Neckar.
Sämtliche Geschäfte des täglichen Bedarfs, Kindergarten, Schulen und Ärzte sind fußläufig erreichbar.
Den Bahnhof in Esslingen mit S-Bahn Anschluss erreichen Sie ebenfalls in wenigen Gehminuten.
Die Jahresnettokaltmiete beträgt aktuell € 35.657.-.
Die derzeit erzielten Mieten liegen deutlich unter dem marktüblichen Niveau und lassen Spielraum für zukünftige Mietanpassungen.
Die Kerninnenstadt von Esslingen am Neckar ist als Gesamtanlage unter Denkmalschutz gestellt, was den Schutz des äußeren Erscheinungsbildes (Stadtbild) und der historischen Bausubstanz umfasst.
Genehmigungspflichtig sind lediglich Baumaßnahmen, die das Erscheinungsbild der historischen Innenstadt beeinflussen.
Ein Energieausweis ist daher nicht erforderlich.
Auf die Veröffentlichung von Innenbildern wird verzichtet, um die Privatsphäre und den Respekt gegenüber den Mietern zu wahren.
